Το νέο project 3R (Reclaim, Rebrace, Recount) , που βρίσκεται στον 5ο όροφο της οδού Κ. Καρτάλη 150, στο κέντρο του Βόλου, αποτελεί μια ολοκληρωμένη αναμόρφωση, με στόχο να στεγάσει τα νέα γραφεία της R DEC Design & Construction Ε.Ε. Η ανακαίνιση περιλαμβάνει μια ριζική επανασχεδίαση του χώρου, με έμφαση τόσο στη χωροθετική οργάνωση όσο και στην ενεργειακή απόδοση, με σκοπό να δημιουργηθεί ένα σύγχρονο και δυναμικό περιβάλλον εργασίας που ενθαρρύνει τη συνεχή ροή και συνέργεια στη σχεδιαστική διαδικασία.
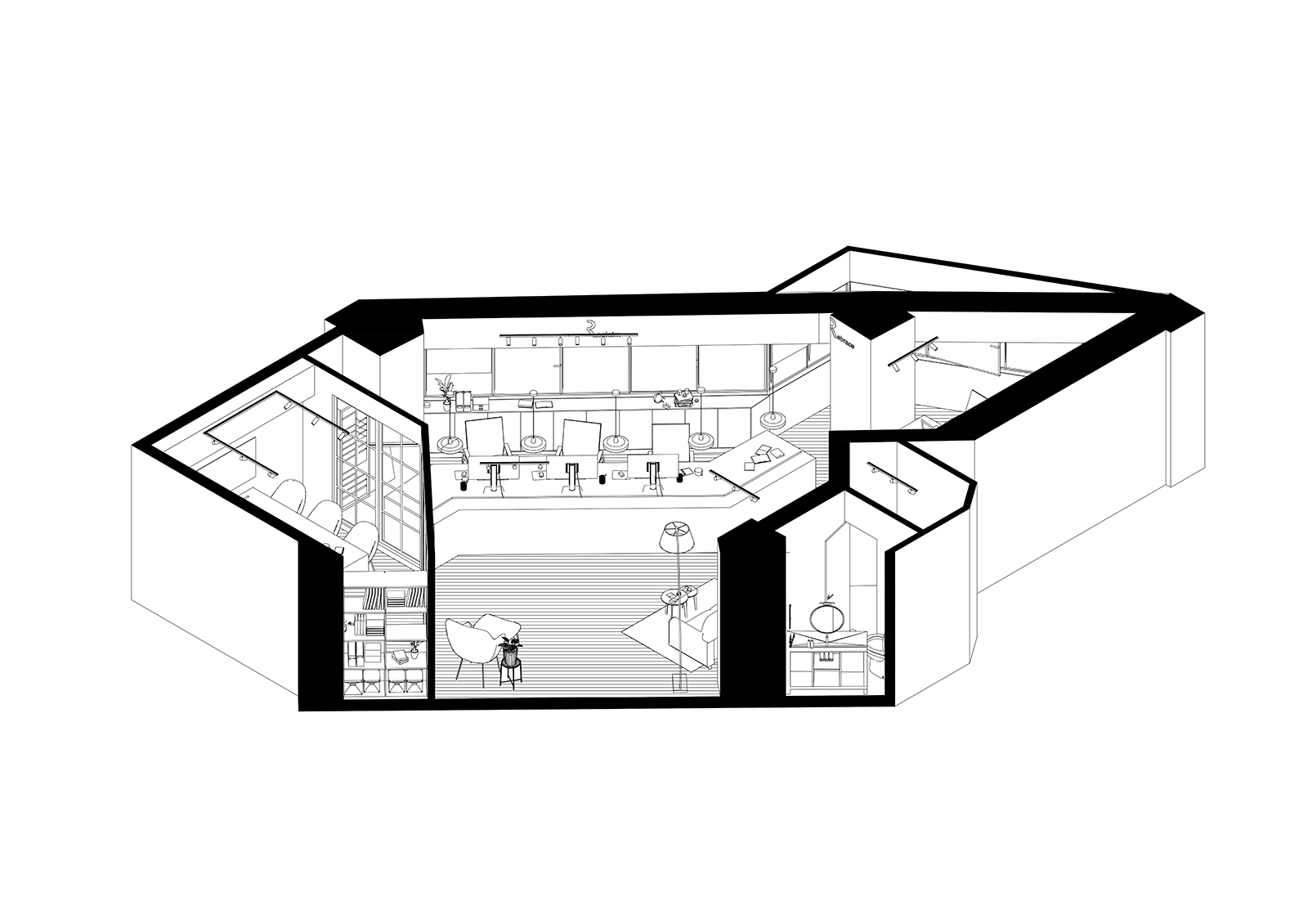
Η εσωτερική διαρρύθμιση του χώρου σχεδιάστηκε με γνώμονα την ενίσχυση της δημιουργικότητας και της αποτελεσματικότητας, διαμορφώνοντας τρεις κύριες ζώνες: τον χώρο σχεδιασμού, τον χώρο μελετών και τον χώρο παρουσιάσεων. Οι τρεις αυτοί χώροι συνδέονται μεταξύ τους αλλά δίνεται η δυνατότητα απομόνωσης του χώρου παρουσιάσεων με τη χρήση συρόμενων θυρών, προσφέροντας ευελιξία στη χρήση και προσαρμοστικότητα ανάλογα με τις ανάγκες.
Οι καθαρές γεωμετρικές γραμμές και οι σύνθετες γωνίες, που χαρακτηρίζουν την υφιστάμενη κάτοψη, ενισχύονται και αναδεικνύονται μέσω του σχεδιασμού των custom επίπλων. Τα έπιπλα σχεδιάστηκαν ειδικά για τον χώρο αυτό, ενσωματώνοντας τη φιλοσοφία της δημιουργικής γραμμής παραγωγής, με έμφαση στη λειτουργικότητα και την εργονομία.
Η παλέτα των υλικών περιλαμβάνει λευκές επιφάνειες, οι οποίες λειτουργούν ως βασικό στοιχείο του σχεδιασμού, ενώ τα γήινα χρώματα του φυσικού ξύλου και της άμμου προσδίδουν αίσθημα ζεστασιάς και οικειότητας. Ο φωτισμός, μελετημένος για να ενισχύει την ατμόσφαιρα και τη λειτουργικότητα του χώρου, παίζει καθοριστικό ρόλο στην αφύπνιση της δημιουργικότητας και στην ενίσχυση της παραγωγικότητας.
Οι σχεδιαστικές επιλογές, τόσο ως προς τις μορφές όσο και τα υλικά, εναρμονίζονται πλήρως με τις ιδιαιτερότητες του υπάρχοντος κελύφους, αναδεικνύοντας την αισθητική και ενισχύοντας τη λειτουργικότητα του χώρου.
























